[vc_row css_animation=»fadeInUp»][vc_column][vc_column_text]
Центробежные дутьевые вентиляторы одностороннего всасывания типа ВДН предназначены для подачи воздуха в топки паровых котлов. Такими вентиляторами комплектуются котлы с уравновешенной тягой паропроизводительностью 1…25 т/ч, а также газомазутные водогрейные котлы теплопроизводительностью 0,5…16 Гкал/ч.
Допускается применение дымососов ВДН и ДН в технологических установках различных отраслей народного хозяйства для перемещения чистого воздуха, а также в качестве дымососов на газомазутных котлах с уравновешенной тягой.Вентиляторы предназначены для эксплуатации при температуре окружающего воздуха не ниже -30°С и не выше +40°С.
Вентиляторы рассчитаны на на продолжительный режим работы в помещении и на открытом воздухе (вне помещения под навесом) в условиях умеренного климата (климатическое исполнение У, категория размещения 2, ГОСТ 15150-69). Допустимая температура окружающего воздуха не ниже -30°C и не выше +40°C.[/vc_column_text][vc_btn title=»КУПИТЬ» color=»primary» align=»center» button_block=»true» el_class=»sg-popup-id-1902″][/vc_column][/vc_row][vc_row css_animation=»fadeInUp»][vc_column][vc_column_text]Центробежные дымососы одностороннего всасывания типа ДН предназначены для отсасывания дымовых газов из топок котельных агрегатов, оборудованных эффективно действующими системами золоулавливания, а также для отсасывания дымовых газов из топок газомазутных котельных агрегатов.Дымососы ВДН и ДН рассчитаны на продолжительный режим работы в помещении и на открытом воздухе в условиях умеренного климата (климатическое исполнение У, категории размещения 1, 2, 3 и 4, ГОСТ 15150-69). Запуск дымососов разрешается при температуре в улитке не ниже -30°С. Максимальная температура газов на входе в дымососы не должна превышать +200°С.Для долговечности дымососов типа ДН толщина стенок улиток увеличена по сравнению с вентиляторами типа ВДН.
Технические Характеристики
| Вентиляторы ВДН и ДН | Электродвигатель | Параметры в рабочей зоне | Масса, кг | ||||||||||
|---|---|---|---|---|---|---|---|---|---|---|---|---|---|
| Электродвигатель | Мощность,кВт | Частота вращения, мин-1 | Производительность 103 х м3/час | Полное давление, Па |
Исполнение | ||||||||
| 1 | 2 | 3 | |||||||||||
| ВДН-6,3 | АИР112МВ6 | 4 | 1000 | 3400 | 545 | 325 | 510 | 460 | |||||
| АИР112М4 | 5,5 | 1500 | 5100 | 1230 | 325 | 510 | 460 | ||||||
| ДН-6,3 | АИР112МВ6 | 4 | 1000 | 3400 | 435 | 325 | 510 | 460 | |||||
| АИР112М4 | 5,5 | 1500 | 5100 | 980 | 325 | 510 | 460 | ||||||
| ВДН-8 | 5А160S6 | 11 | 1000 | 6700 | 970 | 505 | 700 | 655 | |||||
| 5А160S4 | 15 | 1500 | 10460 | 2200 | 505 | 700 | 655 | ||||||
| ДН-8 | 5А160S6 | 11 | 1000 | 6700 | 780 | 505 | 700 | 655 | |||||
| 5А160S4 | 15 | 1500 | 10460 | 1780 | 505 | 700 | 655 | ||||||
| ВДН-9 | 5А160S6 | 11 | 1000 | 9930 | 1230 | 550 | 780 | 725 | |||||
| 5А160S4 | 15 | 1500 | 14900 | 2800 | 550 | 780 | 725 | ||||||
| ДН-9 | 5А160S6 | 11 | 1000 | 9930 | 990 | 550 | 780 | 725 | |||||
| 5А160S4 | 15 | 1500 | 14900 | 2220 | 550 | 780 | 725 | ||||||
| ВДН-10 | 5А160S6 | 11 | 1000 | 13620 | 1550 | 620 | 885 | 925 | |||||
| АИР180М4 | 30 | 1500 | 20450 | 3450 | 700 | 950 | 990 | ||||||
| ДН-10 | 5А160S6 | 11 | 1000 | 13620 | 1150 | 620 | 885 | 925 | |||||
| АИР180М4 | 30 | 1500 | 20450 | 2680 | 700 | 950 | 990 | ||||||
| ВДН-11,2 | 5А200М6 | 22 | 1000 | 19100 | 1900 | 920 | 1325 | 1270 | |||||
| 5А200L4 | 45 | 1500 | 28750 | 4400 | 980 | 1390 | 1375 | ||||||
| ДН-11,2 | 5А200М6 | 22 | 1000 | 19100 | 1550 | 920 | 1325 | 1270 | |||||
| 5А200L4 | 45 | 1500 | 28750 | 3500 | 980 | 1390 | 1375 | ||||||
| ВДН-12,5 | 5А200L6 | 30 | 1000 | 26600 | 2350 | 1130 | 1515 | 1460 | |||||
| 5АМ250М4 | 90 | 1500 | 39900 | 5300 | 1390 | 1770 | 1750 | ||||||
| ДН-12,5 | 5А200L6 | 30 | 1000 | 26600 | 1950 | 1130 | 1515 | 1460 | |||||
| 5А250S4 | 75 | 1500 | 39900 | 4400 | 1340 | 1725 | 1715 | ||||||
| ВДН-13 | 5АМ250S6 | 45 | 1000 | 40000 | 2250 | 1400 | 1780 | 1760 | |||||
| 5А280М4 | 132 | 1500 | 60000 | 5000 | 1655 | 2220 | — | ||||||
| ДН-13 | 5А200L6 | 30 | 1000 | 40000 | 1800 | 1200 | 1710 | 1520 | |||||
| 5АМ280S4 | 110 | 1500 | 60000 | 4000 | 1530 | 2090 | — | ||||||
| ВДН-15 | 5А280S8 | 55 | 750 | 37500 | 2200 | — | 2100* | — | |||||
| 5А280S6 | 75 | 1000 | 50000 | 3700 | — | — | |||||||
| АИР355М4 | 315 | 1500 | 78000 | 8200 | — | — | |||||||
| ДАЗО4-400ХК-4 | 315 | 1500 | 78000 | 8200 | — | — | |||||||
| ДН-15 | 5А280S8 | 55 | 750 | 37500 | 1700 | — | 2100* | — | |||||
| 5А280S6 | 75 | 1000 | 50000 | 3000 | — | — | |||||||
| АИР355S4 | 250 | 1500 | 78000 | 6900 | — | — | |||||||
| АОД-355Х-4 | 250 | 1500 | 78000 | 6900 | — | — | |||||||
| ВДН-17 | 5А315S8 | 90 | 750 | 57000 | 2650 | — | 2320* | — | |||||
| АИР355S6 | 160 | 1000 | 75000 | 3800 | — | — | |||||||
| ДАЗО4-450Х-4 | 630 | 1500 | 110000 | 10900 | — | — | |||||||
| ДН-17 | 5А280S8 | 55 | 750 | 57000 | 2200 | — | 2320* | — | |||||
| АИР355S6 | 160 | 1000 | 75000 | 3500 | — | — | |||||||
| ДАЗО4-400ХК-4 | 315 | 1500 | 110000 | 8600 | — | — | |||||||
| ДАЗО4-400Х-4 | 400 | 1500 | 110000 | 8600 | — | — | |||||||
| ВДН-19 | 5АМ315В-8 | 160 | 750 | 78000 | 3300 | — | 3150* | — | |||||
| АОД-315-6 | 315 | 1000 | 105000 | 5850 | — | — | |||||||
| ДАЗО4-400Х-6МУ-1 | 315 | 1000 | 100500 | 5850 | — | — | |||||||
| ДН-19 | АИР355М10 | 110 | 600 | 62000 | 1700 | — | 3150* | — | |||||
| АИР355S8 | 132 | 750 | 78000 | 2700 | — | — | |||||||
| АИР355МА6 | 200 | 1000 | 105000 | 4620 | — | — | |||||||
| АОД4-355Х-6 | 200 | 1000 | 105000 | 46200 | — | — | |||||||
| АИР355МВ6 | 250 | 1000 | 105000 | 4620 | — | — | |||||||
| ДАЗО4-400ХК-6 | 250 | 1000 | 105000 | 4620 | — | — | |||||||
| ВДН-21 | АИР355МА8 | 160 | 750 | 105000 | 4000 | — | 4340* | — | |||||
| АИР355МВ8 | 200 | 750 | 105000 | 4000 | — | — | |||||||
| ДАЗО4-400Х-8 | 200 | 750 | 105000 | 4000 | — | — | |||||||
| ДАЗО4-400У-6 | 400 | 1000 | 135000 | 7200 | — | — | |||||||
| ДН-21 | АИР355S10 | 90 | 600 | 83000 | 2100 | — | 4340* | — | |||||
| АИР355МА8 | 160 | 750 | 105000 | 3300 | — | — | |||||||
| АДН-315-6 | 315 | 1000 | 135000 | 450 | 118 | 354 | 19 | 3,0 | 16 | 5 | 3 | 12 | |
| 9 | 510 | 450 | 338 | 100 | 500 | 97 | 388 | 12 | 3,5 | 18 | 5 | 4 | 12 |
| 10 | 555 | 500 | 375 | 92 | 552 | 85 | 425 | 10 | 4,0 | 22 | 6 | 5 | 12 |
| 11,2 | 577 | 560 | 420 | 121 | 605 | 118 | 472 | 16 | 5,0 | 18 | 5 | 4 | 12 |
| 12,5 | 671 | 625 | 470 | 135 | 675 | 104 | 520 | 13 | 5 | 18 | 5 | 5 | 16 |
| 13 | 717 | 625 | 580 | 75 | 675 | 63 | 630 | 14 | 5 | 38 | 9 | 10 | 16 |
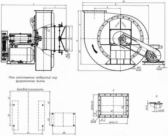
Габаритные и присоединительные размеры ВДН-6,3– ВДН-13, ДН-6,3 – ДН-12,5 (3-е исполнение)

| № маш | A1 | A2 | B | b | C | c | D | D1 | d | E | L | I | H |
|---|---|---|---|---|---|---|---|---|---|---|---|---|---|
| 6,3 | 315 | 450 | 532 | 985 | |||||||||
| 8 | 800 | 530 | 570 | 12 | 277 | 330 | 610 | 1329 | 520 | 1204 | 560 | 580 | 1275 |
| 9 | 900 | 530 | 570 | 14 | 296 | 330 | 610 | 1489 | 585 | 1354 | 630 | 580 | 1275 |
| 10 | 1000 | 650 | 702 | 14 | 316 | 330 | 610 | 1649 | 650 | 1504 | 700 | 600 | 1339 |
| 1349 | |||||||||||||
| 11,2 | 1120 | 660 | 702 | 14 | 317 | 565 | 760 | 1840 | 726 | 1685 | 765 | 700 | 1499 |
| 1545 | |||||||||||||
| 12,5 | 1250 | 830 | 875 | 14 | 342 | 565 | 760 | 2048 | 712 | 1880 | 875 | 730 | 1611 |
| 1665 | |||||||||||||
| 1735 | |||||||||||||
| 1765 | |||||||||||||
| 13 | 1300 | 830 | 875 | 14 | 368 | 565 | 760 | 2048 | 812 | 1880 | 875 | 760 | 2056 |
| № маш | L1 | C | E | t1 | E1 | t2 | E2 | k | f | N | N1 | N2 | n |
|---|---|---|---|---|---|---|---|---|---|---|---|---|---|
| 6,3 | 330 | 315 | 236 | 122 | 366 | 95 | 285 | 20 | 2,5 | 12 | 3 | 3 | 6 |
| 8 | 487 | 400 | 300 | 90 | 450 | 118 | 354 | 19 | 3,0 | 16 | 5 | 3 | 12 |
| 9 | 510 | 450 | 338 | 100 | 500 | 97 | 388 | 12 | 3,5 | 18 | 5 | 4 | 12 |
| 10 | 555 | 500 | 375 | 92 | 552 | 85 | 425 | 10 | 4,0 | 22 | 6 | 5 | 12 |
| 11,2 | 577 | 560 | 420 | 121 | 605 | 118 | 472 | 16 | 5,0 | 18 | 5 | 4 | 12 |
| 12,5 | 671 | 625 | 470 | 135 | 675 | 104 | 520 | 13 | 5 | 18 | 5 | 5 | 16 |
| 13 | 717 | 625 | 580 | 75 | 675 | 63 | 630 | 14 | 5 | 38 | 9 | 10 | 16 |
Габаритные и присоединительные размеры ВДН-6,3– ВДН-13, ДН-6,3 – ДН-12,5 (3-е исполнение)

| № маш | A1 | A2 | B | b | C | c | D | D1 | d | E | L | I | H |
|---|---|---|---|---|---|---|---|---|---|---|---|---|---|
| 6,3 | 315 | 236 | 1060 | 410 | 390 | 236 | 418 | 460 | 12 | 610 | 1466 | 330 | 958 |
| 8 | 400 | 300 | 1329 | 520 | 500 | 277 | 530 | 570 | 12 | 610 | 1873 | 487 | 1204 |
| 9 | 450 | 338 | 1489 | 585 | 575 | 296 | 530 | 570 | 14 | 610 | 2092 | 508 | 1354 |
| 10 | 500 | 375 | 1649 | 650 | 575 | 316 | 660 | 702 | 14 | 610 | 2159 | 555 | 1504 |
| 2169 | |||||||||||||
| 11,2 | 560 | 420 | 1840 | 728 | 730 | 317 | 660 | 702 | 14 | 760 | 2479 | 577 | 1685 |
| 2525 | |||||||||||||
| 12,5 | 625 | 470 | 2048 | 812 | 750 | 342 | 830 | 875 | 14 | 760 | 2645 | 671 | 1880 |
| 2699 | |||||||||||||
| 2769 | |||||||||||||
| 2799 |
| № маш | H1 | h | T1 | t1 | T2 | t2 | k | f | N | N1 | N2 | n |
|---|---|---|---|---|---|---|---|---|---|---|---|---|
| 6,3 | 532 | 450 | 366 | 122 | 285 | 95 | 20 | 2,5 | 12 | 3 | 3 | 6 |
| 8 | 580 | 560 | 450 | 90 | 354 | 118 | 19 | 3,0 | 16 | 5 | 3 | 12 |
| 9 | 580 | 630 | 500 | 100 | 388 | 97 | 12 | 3,5 | 18 | 5 | 4 | 12 |
| 10 | 600 | 700 | 552 | 92 | 425 | 85 | 10 | 4,0 | 22 | 6 | 5 | 12 |
| 11,2 | 700 | 785 | 605 | 121 | 472 | 118 | 16 | 5,0 | 18 | 5 | 4 | 12 |
| 12,5 | 730 | 875 | 675 | 135 | 520 | 104 | 13 | 5,0 | 18 | 5 | 5 | 16 |
Габаритные и присоединительные размеры ВДН-6,3– ВДН-13, ДН-6,3 – ДН-12,5 (5-е исполнение)

| № маш | A1 | A2 | B | B1 | b | C1 | c1 | C2 | c2 | D | D1 | d | d1 | E1 | E2 |
|---|---|---|---|---|---|---|---|---|---|---|---|---|---|---|---|
| 6,3 | 315 | 236 | 1060 | 1405 | 410 | 260 | 236 | 200 | 322 | 418 | 460 | 12 | 18 | 610 | 384 |
| 8 | 400 | 300 | 1329 | 1761 | 520 | 330 | 277 | 240 | 313 | 530 | 570 | 12 | 18 | 610 | 464 |
| 9 | 450 | 338 | 1489 | 1851 | 585 | 440 | 296 | 240 | 481 | 530 | 570 | 14 | 18 | 610 | 464 |
| 10 | 500 | 375 | 1649 | 2078 | 650 | 440 | 316 | 240 | 501 | 660 | 702 | 14 | 18 | 610 | 464 |
| 2095 | 305 | 424 | |||||||||||||
| 11,2 | 560 | 420 | 1840 | 2394 | 728 | 610 | 317 | 360 | 544 | 660 | 702 | 14 | 24 | 760 | 615 |
| 400 | 504 | ||||||||||||||
| 12,5 | 625 | 480 | 2048 | 2333 | 812 | 600 | 342 | 400 | 500 | 830 | 875 | 14 | 24 | 760 | 615 |
| 2357 | 405 | 483 | 645 | ||||||||||||
| 2398 | 410 | 456 | 710 | ||||||||||||
| 2398 | 450 | 418 | 710 |
| № маш | L | I | H | h | h1 | t1 | T1 | t2 | T2 | k | f | N | N1 | N2 | n |
|---|---|---|---|---|---|---|---|---|---|---|---|---|---|---|---|
| 6,3 | 1014 | 330 | 958 | 450 | 532 | 122 | 366 | 95 | 285 | 20 | 2,5 | 12 | 3 | 3 | 6 |
| 8 | 1272 | 487 | 1204 | 560 | 580 | 90 | 450 | 118 | 354 | 19 | 3,0 | 16 | 5 | 3 | 12 |
| 9 | 1461 | 508 | 1354 | 630 | 580 | 100 | 500 | 97 | 388 | 12 | 3,5 | 18 | 5 | 4 | 12 |
| 10 | 1530 | 555 | 1504 | 700 | 600 | 92 | 552 | 85 | 425 | 10 | 4,0 | 22 | 6 | 5 | 12 |
| 11,2 | 1730 | 577 | 1685 | 785 | 700 | 121 | 650 | 118 | 472 | 16 | 5,0 | 18 | 5 | 4 | 12 |
| 12,5 | 1848 | 671 | 1880 | 875 | 730 | 135 | 675 | 104 | 520 | 12 | 5,0 | 18 | 5 | 5 | 16 |
Габаритные и присоединительные размеры ВДН-13, ДН-13; ВДН-15, ДН-15; ВДН-17, ДН-17 (3-е исполнение)

| № маш | A | a | a1 | B | b | H | h | D | D1 | D2 | d | d1 | L1 |
|---|---|---|---|---|---|---|---|---|---|---|---|---|---|
| 13 | 2530 | 716 | 1617 | 2051 | 812,5 | 1975 | 875 | 1300 | 830 | 875 | 12 | 14690 | |
| 15 | 2417 | 716 | 1505 | 2484 | 975 | 2418 | 928 | 1500 | 1100 | 1180 | 13 | 18 | 674 |
| 17 | 2475 | 739 | 1540 | 2805 | 1105 | 2548 | 1048 | 1700 | 1100 | 1180 | 13 | 18 | 748 |
| № маш | L2 | L3 | e | f | t1 | T1 | t2 | T2 | k | m | N | N1 | N2 | n |
|---|---|---|---|---|---|---|---|---|---|---|---|---|---|---|
| 13 | 678 | 1000 | 625 | 580 | 75 | 675 | 63 | 630 | 14 | 4 | 38 | 9 | 10 | 16 |
| 15 | 566 | 1300 | 750 | 558 | 164 | 820 | 160 | 640 | 15 | 5 | 18 | 5 | 4 | 24 |
| 17 | 601 | 1300 | 850 | 632 | 184 | 920 | 175 | 700 | 17 | 5 | 18 | 5 | 4 | 24 |
Габаритные и присоединительные размеры тягодутьевых машин типа ВДН и ДН №19 и №21 (3-е исполнение)

| № маш | A | A1 | a | B | b | D | D1 | C | E | H | h | h1 |
|---|---|---|---|---|---|---|---|---|---|---|---|---|
| 19 | 3065 | 1921 | 924 | 3209 | 1235 | 1245 | 1325 | 950 | 707 | 2810 | 750 | 1230 |
| 21 | 3143 | 1943 | 980 | 3703 | 1365 | 1650 | 1720 | 1050 | 780 | 3041 | 750 | 1340 |
| 22 | 3180 | 1960 | 1000 | 4476 | 1650 | 1650 | 1720 | 1540 | 818 | 3578 | 850 | 1464 |
| № маш | L1 | L2 | L3 | L4 | t1 | t2 | T1 | T2 | N | N2 | n1 | n2 |
|---|---|---|---|---|---|---|---|---|---|---|---|---|
| 19 | 1437 | 1740 | 600 | 461 | 267,5 | 205 | 1070 | 820 | 16 | 16 | 4 | 4 |
| 21 | 1585 | 1926 | 670 | 448 | 225 | 172 | 1125 | 860 | 12 | 20 | 5 | 5 |
| 22 | 1850 | 2444 | 600 | 500 | 330 | 232,5 | 1650 | 930 | 12 | 18 | 5 | 4 |
Опросный лист на тягодутьевые машины (ТДМ)[/vc_column_text][/vc_column][/vc_row]