[vc_row css_animation=»fadeInUp»][vc_column][vc_column_text]
Клапаны огнезадерживающие (АЗЕ 106) серии 5.904-70.93 с пределом огнестойкости 1 ч предназначены для ручного и автоматического блокирования распространения продуктов горения при пожаре по горизонтальным воздуховодам, шахтам и каналам систем вентиляции перемещающих невзрывоопасные парогазовоздушные смеси с давлением до 1500 Па (150 кгс/м2) и скоростью перемещения среды до 20 м/с всех категорий и групп по классификации ГОСТ 12.1.011-78, агрессивность которых по отношению к углеродистым сталям обыкновенного качества не выше агрессивности воздуха с температурой до 80°С, не содержащих липких веществ и волокнистых материалов, с содержанием пыли и других твердых примесей в количестве не более 100 мг/м3.[/vc_column_text][vc_btn title=»КУПИТЬ» color=»primary» align=»center» button_block=»true» el_class=»sg-popup-id-1902″][/vc_column][/vc_row][vc_row css_animation=»fadeInUp»][vc_column][vc_column_text]Клапаны выполнены по чертежам типовой серии 5.904-70.93 ФГУП “СантехНИИпроект” Госстроя Российской Федерации. Размеры сечений клапанов соответствуют размерам поперечных сечений воздуховодов по положению 21 СНиП 2.04.05-91. Присоединительные размеры по фланцам клапанов соответствуют размерам по ГОСТ 26270-84 «Фланцы вентиляционные».
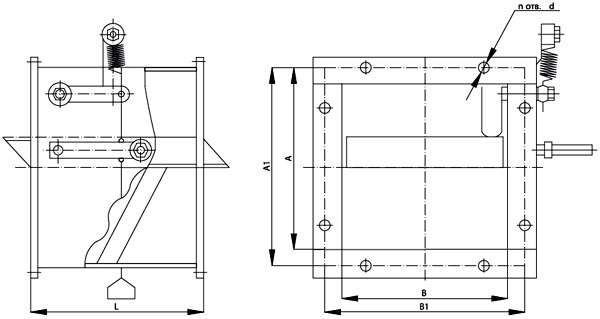
Клапан представляет собой корпус коробчатой формы из тонколистовой стали с двумя фланцами для присоединения к воздуховодам, с лопатками, установленными в подшипниковых узлах и соединенными между собой рычажной системой. Огнезащита клапана обеспечивается нанесением на внутренние и внешние поверхности корпуса, а также на наружные поверхности лопаток вспучивающегося покрытия ВПМ-2 толщиной 5-6 мм по ГОСТ 25131-82.
Установка клапана в открытое положение осуществляется поворотом лопаток посредством рукоятки рычажной системы, которая фиксируется плавкой вставкой с температурой плавления 72°С и чекой с прикрепленным к ней тросом ручного управления. Закрытие клапана происходит при повышении температуры перемещаемого воздуха свыше 72°С и распада при этом плавкой вставки. При необходимости, закрытие клапана ранее достижения температуры 72°С, можно осуществить выдергиванием чеки посредством рукоятки с тросом.
Основные размеры и характеристики клапанов огнезадерживающих.

| ОБОЗНАЧЕНИЕ | Размеры, мм | n | Масса, кг | |||
|---|---|---|---|---|---|---|
| AxB | A1xB1 | L | d | |||
| АЗЕ 106.000-00 | 250х250 | 280х280 | 245 | 8 | 8 | 13,5 |
| АЗЕ 106.000-01 | 300х250 | 330х280 | 300 | 10 | 15 | |
| АЗЕ 106.000-02 | 400х400 | 430х430 | 415 | 12 | 25 | |
| АЗЕ 106.000-03 | 500х500 | 530х530 | 530 | 16 | 37 | |
| АЗЕ 106.000-04 | 600х600 | 630х630 | 650 | 10 | 20 | 54 |
| АЗЕ 106.000-05 | 800х800 | 830х830 | 880 | 86 | ||
| АЗЕ 106.000-06 | 1000х1000 | 1040х1040 | 1100 | 12 | 24 | 128 |
[/vc_column_text][/vc_column][/vc_row]