[vc_row css_animation=»fadeInUp»][vc_column][vc_column_text]
Клапаны обратные общего назначения круглого сечения (КО) и прямоугольного сечения (КОп) серии 5.904-41 предназначены для предотвращения перетекания воздуха и невзрывоопасных газопаровоздушных смесей, агрессивность которых по отношению к углеродистым сталям обыкновенного качества не выше агрессивности воздуха с температурой до 80°С, не содержащих липких веществ и волокнистых материалов, с содержанием пыли и других твердых примесей в количестве не более 100 мг/м3 через ответвления к отключенным вентиляторам (от отключенных вентиляторов) при присоединение последних к коллекторам. Установка клапанов в сети допускается при скоростях воздуха на горизонтальных участках не менее 5,6 м/c, а на вертикальных – не менее 4 м/с.[/vc_column_text][vc_btn title=»КУПИТЬ» color=»primary» align=»center» button_block=»true» el_class=»sg-popup-id-1902″][/vc_column][/vc_row][vc_row][vc_column][vc_column_text]
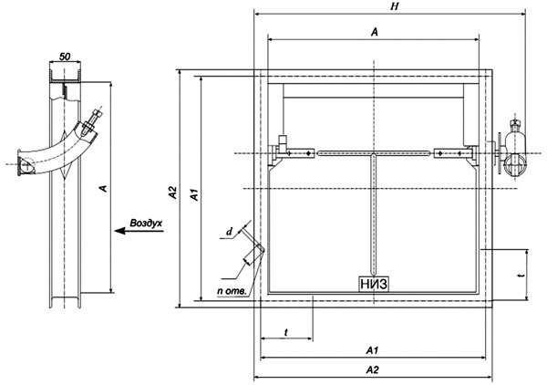
Клапаны выполнены по чертежам типовой серии 5.904-41 ФГУП “СантехНИИпроект” Госстроя Российской Федерации. Размеры сечений клапанов соответствуют размерам поперечных сечений воздуховодов по положению 21 СНиП 2.04.05-91. Присоединительные размеры по фланцам клапанов соответствуют размерам по ГОСТ 26270-84 «Фланцы вентиляционные».
Клапан представляет собой корпус из тонколистовой стали с двумя фланцами для присоединения к воздуховодам. Внутри корпуса на полуосях установлена лопатка. Ось вращения лопатки смещена относительно оси симметрии, благодаря чему при воздействии воздушного потока возникает момент, поворачивающий полотно и устанавливающий клапан в открытое положение. При прекращении движения воздуха лопатка возвращается в исходное положение и происходит закрытие клапана
Основные размеры и характеристики клапанов огнезадерживающих взрывозащищенных.

| ОБОЗН-Е | Размеры, мм | Потери давления при полностью открытом клапане, кгс/м2 |
Коэфф. местного сопрот-я |
Масса, кг |
||||||
|---|---|---|---|---|---|---|---|---|---|---|
| при V не более 13 м/c |
при V не более 5.6 м/c |
при V не менее 5.6 м/с |
||||||||
| D | D1 | D2 | H | L | d x b | на горизонт-х участках |
на верт-х участках |
на верт-х участках |
||
| КО-00 | 250 | 280 | 300 | 365 | 110 | 7 x 10 | 4 | 0.04 | 0.001 | 4.6 |
| КО-01 | 315 | 345 | 365 | 435 | 148 | 5 | 0.07 | 5.5 | ||
| КО-02 | 400 | 430 | 450 | 520 | 175 | 7 | 0.12 | 6.5 | ||
| КО-03 | 500 | 530 | 550 | 630 | 234 | 11 | 0.26 | 8.1 | ||
| КО-04 | 630 | 660 | 680 | 760 | 180 | 10 x 16 | 11 | 0.52 | 0.03 | 12.1 |
| КО-05 | 800 | 830 | 850 | 950 | 274 | 12 | 1.1 | 0.06 | 17.0 | |
| КО-06 | 1000 | 1040 | 1064 | 1164 | 315 | 21 | 2.23 | 0.12 | 25.6 | |
| КО-07 | 1250 | 1295 | 1322 | 1422 | 375 | 12 x 18 | 32 | 4.57 | 0.25 | 35.5 |
Основные размеры и характеристики клапанов круглого сечения (КОп):

| ОБОЗНАЧЕНИЕ | Размеры, мм | При скорости потока, не менее | Масса, кг | ||||||||
|---|---|---|---|---|---|---|---|---|---|---|---|
| А | А1 | А2 | H | L | t | d x b | на горизонт. участках 13 м/с |
на вертикальных участках 5,6 м/с |
|||
| Потери давления при полностью открытом клапане, кгс/м2 |
Коэффиц. местного сопротивления |
||||||||||
| КОп-00 | 150 | 180 | 200 | 280 | 110 | 90 | 7 x 10 | 6 | 0 | 0,001 | 3,8 |
| КОп-01 | 200 | 230 | 250 | 330 | 110 | 115 | 8 | 0,02 | 4,6 | ||
| КОп-02 | 250 | 280 | 300 | 380 | 110 | 140 | 9 | 0,04 | 5,5 | ||
| КОп-03 | 400 | 430 | 450 | 540 | 175 | 143,3 | 11 | 0,18 | 8,2 | ||
| КОп-04 | 500 | 530 | 550 | 640 | 234 | 132,5 | 15 | 0,37 | 10,3 | ||
| КОп-05 | 800 | 840 | 864 | 990 | 274 | 168 | 10 x 16 | 20 | 1,56 | 0,08 | 17,8 |
| КОп-06 | 1000 | 104 | 1072 | 1220 | 315 | 149,7 | 12 x 18 | 31 | 3,14 | 0,17 | 25,4 |
[/vc_column_text][/vc_column][/vc_row]