[vc_row css_animation=»fadeInUp»][vc_column][vc_column_text]
Клапан противопожарный универсальный КПУ-3 и КПУ-3Аэ. Клапан противопожарный универсальный КПУ-3 и КПУ-3Аэ может быть установлен в любом положении на участках воздуховодов, имеющих пересечение со строительными конструкциями. Клапан КПУ-3 и КПУ-3Аэ применяется согласно требованиям СНиП 41-01-2003.[/vc_column_text][vc_btn title=»КУПИТЬ» color=»primary» align=»center» button_block=»true» el_class=»sg-popup-id-1902″][/vc_column][/vc_row][vc_row css_animation=»fadeInUp»][vc_column][vc_column_text]
Общие сведения
Эксплуатации клапана возможна в закрытых помещениях с регулируемыми искусственно климатическими условиями. Вид климатического исполнения – УХЛ4 по ГОСТ 15150-69.
При эксплуатации клапанов КПУ-3 и КПУ-3Аэ климатические факторы внешней среды должны иметь следующие значения:
- агрессивные пары и газы в концентрациях, разрушающих металлы и изоляцию в окружающей среде, должны отсутствовать;
- рабочие температуры окружающего воздуха должны находиться в следующих пределах: максимальное значение + 40°С, минимальное — 30°С;
- относительная влажности в наиболее теплый и влажный период имеет среднемесячное значение – 65% при 20°С, верхнее значение относительной влажности – 90% при 20° C.
Клапаны КПУ-3 и КПУ-3Аэ запрещено устанавливать во взрывопожароопасных помещениях категорий А и Б.
Пределы огнестойкости:
- в режиме нормально открытого (огнезадерживающего) клапана — EI120 (2 часа),
- в режиме двойного действия — EI120 (2 часа),
- в режиме дымового клапана – Е120 (2 часа).
Конструкция корпуса клапана позволяет осуществлять крепление к воздуховодам и другим элементам систем вентиляции. Для изготовления корпуса используется тонколистовой металл — ГОСТ 14918-80.
В корпусе клапана устанавливается заслонка поворотного типа, во внутренней полости которой размещается теплозащитный наполнитель по ГОСТ 2850-75.По периметру заслонка обклеена теплоизоляционным терморасширяющимся материалом. Клапан противопожарный универсальный КПУ-3 и КПУ-3Аэ состоит из двух корпусов с теплоизолирующей проставкой между ними.
Используются следующие типы приводов в зависимости от исполнения клапанов:
- электромеханический привод;
- пружинный привод и тепловой замок.
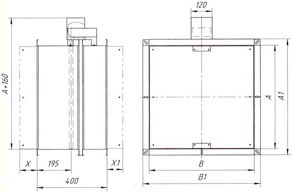
Основные размеры клапана КПУ-3 и КПУ-3Аэ
А, В – внутренние размеры поперечного сечения клапана (А>=В)
А,В=А,Ввоздуховода-10мм
А1=А+70 мм, В1=В+70 мм.
Основные размеры клапана КПУ-3Аэ.

| Сечение воздуховода(Ширина x высота) | А х В |
|---|---|
| 200х200 | 190х190 |
| 250х250 | 240х240 |
| 300х300 | 290х290 |
| 400х400 | 390х390 |
| 500х500 | 490х490 |
| 600х600 | 590х590 |
| 700х700 | 690х690 |
| 800х800 | 790х790 |
Значения вылетов заслонки за корпус прямоугольного клапана:
| В, мм | 190 | 240 | 290 | 390 | 490 | 590 | 690 | 790 |
| Х, мм | 0 | 0 | 0 | 0 | 50 | 100 | 150 | 200 |
| Х1, мм | 0 | 0 | 0 | 0 | 40 | 90 | 140 | 190 |
Х – вылет заслонки за корпус клапана на входе в клапан, мм;
Х1 – вылет заслонки за корпус клапана на выходе, мм.[/vc_column_text][vc_column_text]Все интересующие Вас вопросы вы можете уточнить у специалистов Серпуховского вентиляционного завода Вентмаш М по телефону +7(495) 783-72-19 или по электронной почте ventmash-m@ventmash.net.
Срок изготовления в настоящее время от 3-х дней.
Возможно изготовление аналогов зарубежных и отечественных изготовителей.[/vc_column_text][/vc_column][/vc_row]