[vc_row css_animation=»fadeInUp»][vc_column][vc_column_text]
Водяные обогреватели СВН предназначены для обогрева воздуха в системах кондиционирования и вентиляции прямоугольного сечения.
Все интересующие Вас вопросы вы можете уточнить у специалистов Серпуховского вентиляционного завода Вентмаш М по телефону +7(495) 783-72-19 или по электронной почте ventmash-m@ventmash.net.
Возможно изготовление аналогов зарубежных и отечественных изготовителей.[/vc_column_text][vc_btn title=»КУПИТЬ» color=»primary» align=»center» button_block=»true» el_class=»sg-popup-id-1902″][/vc_column][/vc_row][vc_row css_animation=»fadeInUp»][vc_column][vc_column_text]
Конструкция
Корпус обогревателя изготовлен из оцинкованного листа. Трубные коллекторы сварены из стальных трубок с поверхностной обработкой синтетической краской. Поверхность теплообмена изготовлена из алюминиевых пластин толщиной 0,1 mm, натянутых на медные трубки диаметром 9,52 mm (3/8″). Стандартное исполнение двухрядное с чередующейся геометрией.
- макс. доп. температура воды 130°С
- макс. допустимое давление 1,6МРа

Место установки
- Если теплоносителем является вода, обогреватели предн азначены только для внутреннего применения в помещениях, где температура не должна быть ниже точки замерзания воды (не касается обогреваемого воздуха).
- Наружное применение возможно только в случае, если теплоносителем является незамерзающая смесь(например, раствор этиленгликоля). Водяные обогреватели могут работать в любом положении, позволяющем их обезвоздушива-ние.
- К обогревателю необходимо обеспечить контрольн ый и сервисный доступ.
- Перед обогревателем необходимо установить воздушный фильтр, защищающий его от загрязнения.
- Для достижения максимальной мощности необходимо обогреватель подключить, как противоточный.
- Если обогреватель находится перед вентилятором, необходимо регулировать его мощность так, чтобы не превысить максимально допустимую температуру воздуха, перемещаемого вентилятором.
- Если обогреватель размещен за вентилятором, рекомендуем между вентилятором и обогревателем запроектировать элемент, стабилизирующий поток воздуха (например, воздуховод длиной 1-1,5 м).
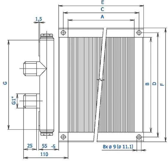
Габаритные и присоединительные размеры
| Обозначение | Размеры и вес, мм | |||||||
|---|---|---|---|---|---|---|---|---|
| A | B | C | D | E | F | G | Вес(2К) ±10%, кг | |
| СВН 40-20/2R | 400 | 200 | 420 | 220 | 440 | 240 | 180 | 5,0 |
| СВН 40-20/3R | 5,0 | |||||||
| СВН 50-25/2R | 500 | 250 | 520 | 270 | 540 | 290 | 230 | 6,0 |
| СВН 50-25/3R | 6,0 | |||||||
| СВН 50-30/2R | 500 | 300 | 520 | 320 | 540 | 340 | 280 | 7,0 |
| СВН 50-30/3R | 7,0 | |||||||
| СВН 60-30/2R | 600 | 300 | 620 | 320 | 640 | 340 | 280 | 8,0 |
| СВН 60-30/3R | 8,0 | |||||||
| СВН 60-35/2R | 600 | 350 | 620 | 370 | 640 | 390 | 330 | 11,0 |
| СВН 60-35/3R | 11,0 | |||||||
| СВН 70-40/2R | 700 | 400 | 720 | 420 | 740 | 440 | 380 | 15,0 |
| СВН 70-40/3R | 15,0 | |||||||
| СВН 80-50/2R | 800 | 500 | 830 | 530 | 840 | 560 | 480 | 16,0 |
| СВН 80-50/3R | 16,0 | |||||||
| СВН 90-50/2R | 900 | 500 | 930 | 530 | 960 | 560 | 480 | 16,0 |
| СВН 90-50/3R | 16,0 | |||||||
| СВН 100-50/2R | 1000 | 500 | 1030 | 530 | 1060 | 560 | 480 | 21,0 |
| СВН 100-50/3R | 21,0 | |||||||
![]() |

Расчет водяного обогревателя |
Последовательность расчета обогревателя |
исходные заданные величины
полученные величины
|
|
Потери давления обогревателей СВН
Номограмма падения давления воздуха действительна для всех водяных обогревателей СВН. Для выбранного расхода воздуха 1 можно по нижней диаграмме рассчитать скорость течения 3 в свободном сечении обогревателя 2, а затем для известной скорости воздуха можно на верхней диаграмме 4 установить соответствующее падение давления воздуха 5.[/vc_column_text][/vc_column][/vc_row]
